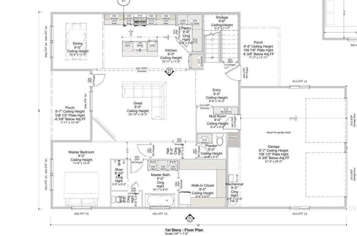
Well thought out The Ridge Floorplan with 2 masters and 2 utility spaces. Great room with customary fireplace and large windows. Ceilings are 9 ft’ Chotika offers several options for floorplans and pricing compliments the quality of craftmsanship. Ease of commute and welcome to the growing town of Kuna, Idaho.
Property Details
Price:
$0
MLS #:
98969795
Status:
Active
Beds:
4
Baths:
4
Type:
Single Family
Subtype:
Single Family Residence
Subdivision:
Chotika Subdivision
Neighborhood:
kuna1100
Listed Date:
Dec 15, 2025
Finished Sq Ft:
2,512
Total Sq Ft:
2,512
Lot Size:
6,098 sqft / 0.14 acres (approx)
Year Built:
2026
Schools
School District:
Kuna School District #3
Elementary School:
Kuna
Middle School:
Kuna
High School:
Kuna
Interior
Above Grade Finished Area
2512
Appliances
Tank Water Heater
Cooling
Central Air
Flooring
Carpet
Heating
Forced Air
Interior Features
Two Master Bedrooms, Walk-In Closet(s), Pantry, Kitchen Island
Levels
Two
Main Level Bathrooms
1
Main Level Bedrooms
1
Exterior
Construction Materials
Frame
Covered Spaces
3
Fencing
Block/Brick/Stone
Garage Spaces
3
Lot Features
Standard Lot 6000-9999 SF
New Construction YN
1
Open Parking YN
1
Parking Features
Finished Driveway
Parking Spots
3
Parking Total
3
Financial
HOA Fee
$400
HOA Fee Frequency
Annually
Tax Year
2026
Contact Us
Mortgage Calculator
Similar Listings Nearby
Listing courtesy of Homes of Idaho
Disclaimer: The data relating to real estate for sale on this web site comes in part from the IDX program of the Intermountain Multiple Listing Service. Real estate listings held by brokerage firms other than Cozy Boise are marked with the Intermountain Multiple Listing Service Logo. Detailed information for these types of listings shall include the name of the listing Brokerage. Information provided by IMLS is deemed reliable but not guaranteed. IDX information is provided exclusively for consumers personal, non-commercial use, that it may not be used for any purpose other than to identify prospective properties consumers may be interested in purchasing. IMLS does not assume any liability for missing or inaccurate data. Copyright 2026. Intermountain Multiple Listing Service, Inc. All rights reserved.1062 W Troy Pl
Kuna, ID
Sorry, no posts matched your criteria.

