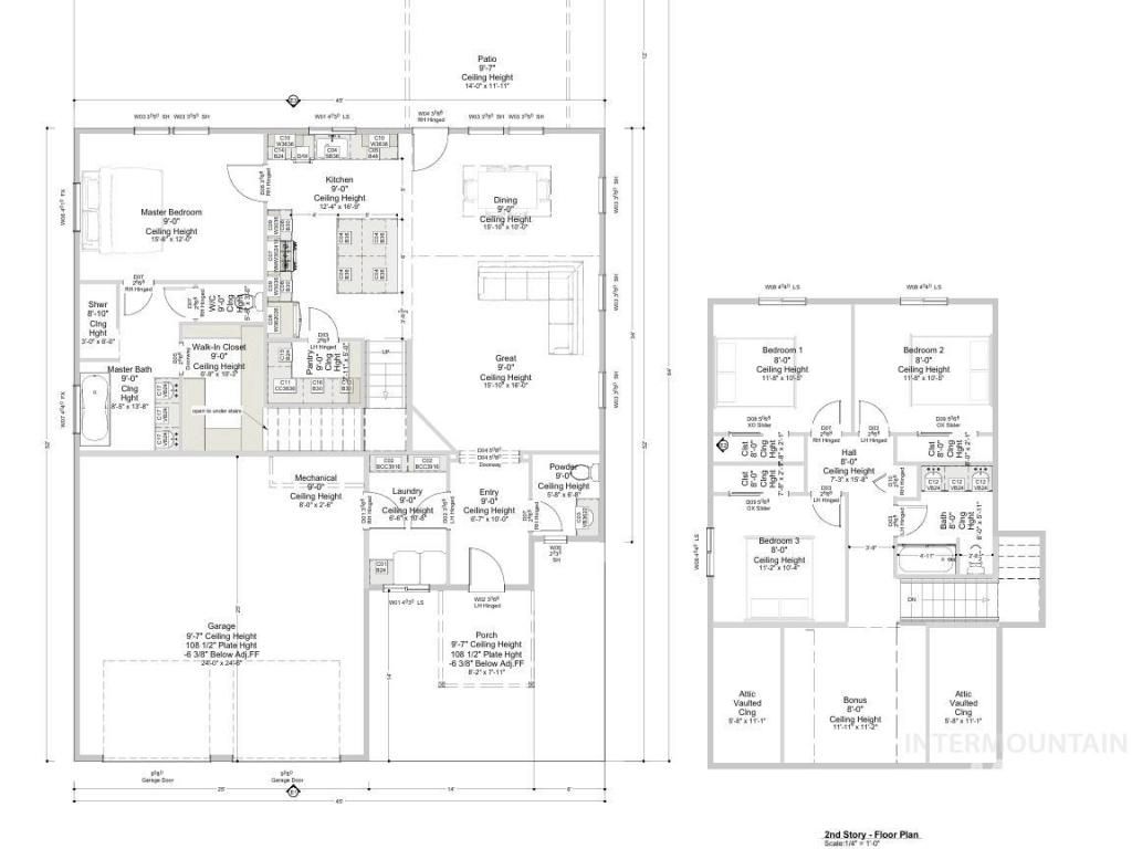
Aspen Floorplan with a customary floorplan layout to fit all lifestyles. Upstairs bonus room of make it a 5th bedroom or office. Homes come with gas stub on a covered backyard patio The Aspen is appx. 14X12. 9 ft ceiling heights on main level to inlcude the Primary Suite with walkin closet and highly favored walkin closets and ensuite bathroom.
Property Details
Price:
$0
MLS #:
98969877
Status:
Active
Beds:
4
Baths:
3
Type:
Single Family
Subtype:
Single Family Residence
Subdivision:
Chotika Subdivision
Neighborhood:
kuna1100
Listed Date:
Dec 17, 2025
Finished Sq Ft:
2,188
Total Sq Ft:
2,188
Lot Size:
6,098 sqft / 0.14 acres (approx)
Year Built:
2026
Schools
School District:
Kuna School District #3
Elementary School:
Kuna
Middle School:
Kuna
High School:
Kuna
Interior
Above Grade Finished Area
2188
Appliances
Water Heater
Flooring
Tile
Heating
Forced Air
Interior Features
Walk-In Closet(s), Walk In Shower, Pantry, Kitchen Island, Quartz Counters
Levels
Two
Main Level Bathrooms
1
Main Level Bedrooms
1
Exterior
Covered Spaces
2
Garage Spaces
2
Lot Features
Standard Lot 6000-9999 SF
New Construction YN
1
Open Parking YN
1
Parking Features
Finished Driveway
Parking Spots
2
Parking Total
2
Financial
HOA Fee
$450
HOA Fee Frequency
Annually
Tax Year
2026
Contact Us
Mortgage Calculator
Similar Listings Nearby
Listing courtesy of Homes of Idaho
Disclaimer: The data relating to real estate for sale on this web site comes in part from the IDX program of the Intermountain Multiple Listing Service. Real estate listings held by brokerage firms other than Cozy Boise are marked with the Intermountain Multiple Listing Service Logo. Detailed information for these types of listings shall include the name of the listing Brokerage. Information provided by IMLS is deemed reliable but not guaranteed. IDX information is provided exclusively for consumers personal, non-commercial use, that it may not be used for any purpose other than to identify prospective properties consumers may be interested in purchasing. IMLS does not assume any liability for missing or inaccurate data. Copyright 2026. Intermountain Multiple Listing Service, Inc. All rights reserved.1166 W Recess Way
Kuna, ID
Sorry, no posts matched your criteria.

